咨询电话:0371-53738676

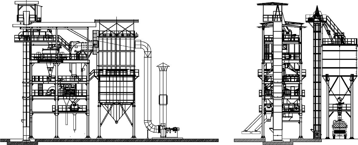
塔式制砂楼

塔式制砂楼

DSV干式制砂楼

生产能力:50~200t/h

 入料粒径:0~40mm

专为商混站打造
小产能
投资少
占地小

采用高度集约的落楼式全封闭布置,集高效制砂、粒型优化、石粉控制、级配调整、含水率控制、环保处理于一体,更实现了机制砂粒型、级配、含粉量等各项指标的全面提升,为砂石、水泥、混凝土产业链的发展创造新的机会和价值。

免费在线咨询

考察电话:0371-53738676

八大优势



让制砂更加绿色化、全环保、智能化

节能环保

快捷高效、环保智能

优化粒型

石粉控制、级配流畅

低成本

投入低、安装快、占地小

技术参数

五大应用领域

适用于商混站、砂浆站、水稳站、小型砂石厂等环境

小型砂石厂

商混站

砂浆站

水稳站

相关产品

综合锤式、反击式、冲击式优点
有效利用 “石打石”解理破碎原理
电耗低、维修方便
可按用户要求调节粒径比例
减少圆锥破碎机环节
大大简化工艺流程
大幅度减少设备投资
显著降低生产成本
石打石原理,高效节能
成品砂石级配合理,细数模度可调
结构简单、操作、维护、安装方便
工作噪音低,粉尘污染小

客户案例

我们积累了丰富的实战经验,案例现场遍及矿山、水泥、冶金、化工、建筑垃圾等领域,可以免费提供方案设计。

重庆塔式制砂楼项目

重庆塔式制砂楼项目

【项目位置】重庆市

【处置能力】1600T/H

【设备配置】双转子制砂机、振动筛、给料机等

【项目介绍】制砂楼采用郑州古天乐太阳集团城入口专有的双转子制砂机,大幅度的增产了原来难以生产的0.6~0.15mm粒度范围的砂,颗粒形状为多棱状立方体,成品细度模数稳定在2.2-3.0之间可调,颗粒分布均匀,级配连续、稳定;成品为线性级配,较之天然砂可每方C30节省水泥30-70Kg;成品石粉含量在3-15%之间可控。

重庆300吨砂石骨料生产线

重庆300吨砂石骨料生产线

相关知识

在线留言

留言咨询>等待回访>免费定制

不知道该如何选配机型?

请在下方留言!获取更多产品信息

haugangyanicon

量身打造生产方案

haugangyanicon

质量靠谱价格优惠

haugangyanicon

量身打造生产方案

haugangyanicon

质量靠谱价格优惠

hgy_zaiewm

扫码关注微信公众号

考察电话:0371-53738676

版权所有:郑州古天乐太阳集团城入口工程技术有限公司 备案号:豫ICP备09004530号-3 营业执照

友情链接: 瓜米石 缠绕机 硅微粉生产 沼气火炬

shangwuhuang shangwuren

在线客服


报价电话 shangwudianhua


留言咨询


返回顶部